The
Kego Club
Rental
Conference Room
貸会議室
宴会やパーティー、会議や研修、
少人数の会食から大規模なイベントまで
専属スタッフがトータルサポート
福岡天神駅徒歩1分のアクセス良好な立地に加えて、ご利用目的や人数に応じてアレンジ可能な会場を複数ご用意。
あらゆる「会」を準備から当日までトータルでサポートいたします。
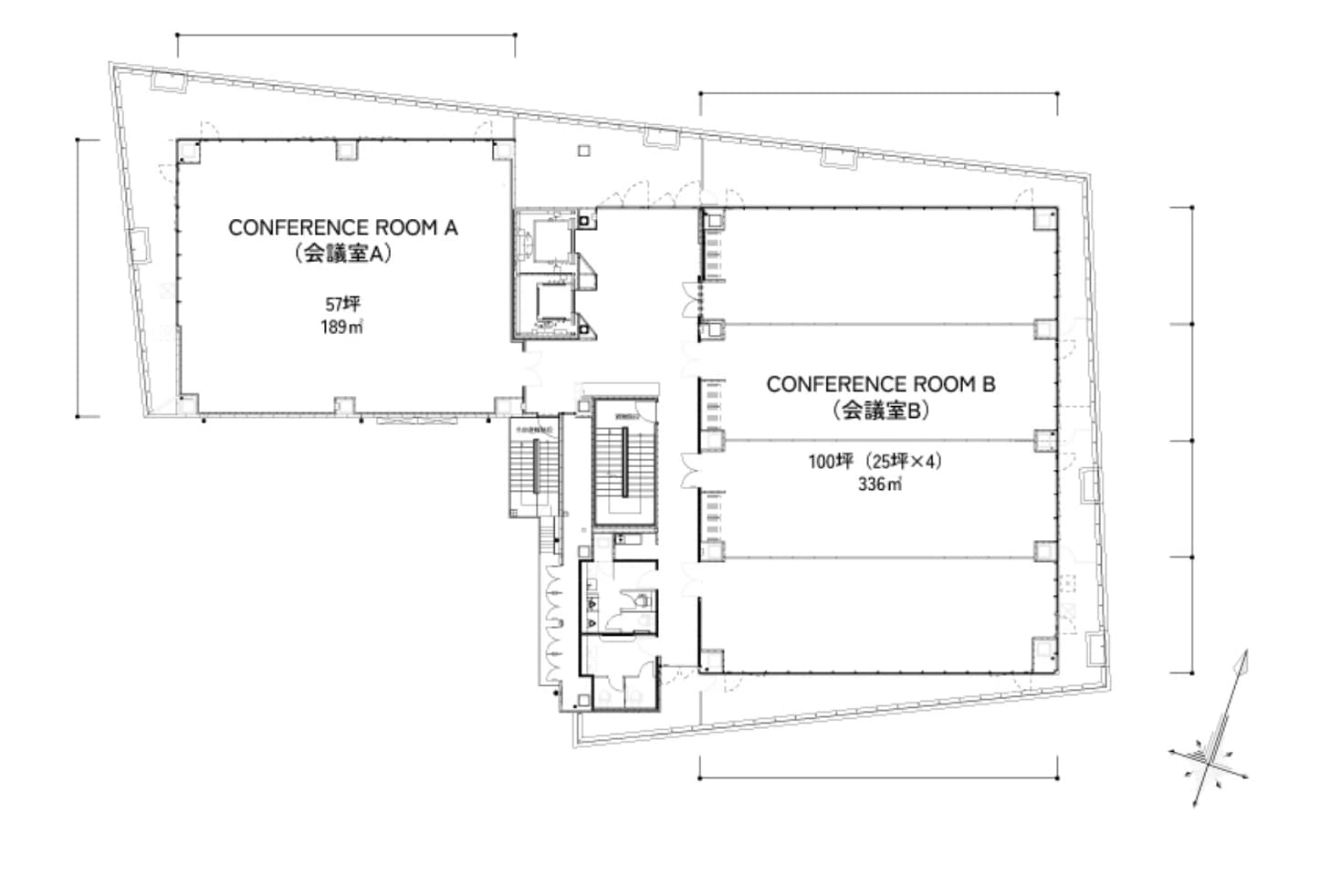
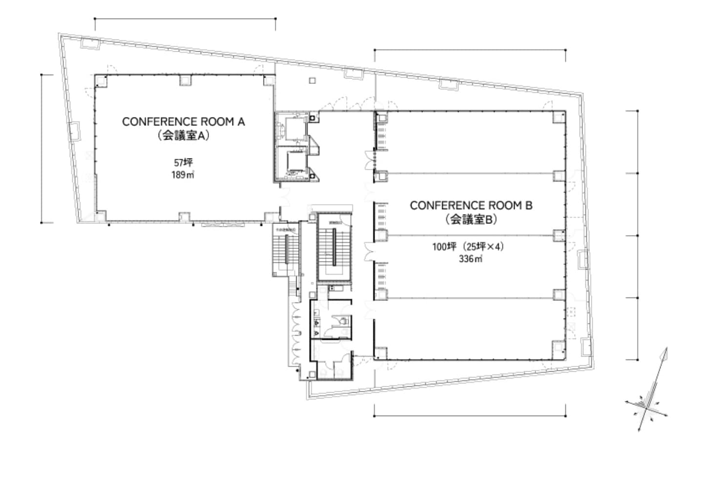
Meeting Space 貸会議室
4~5階の各フロアに100坪と57坪のお部屋を各1部屋ずつご用意しております。
100坪(会議室B)のお部屋は25坪ずつに仕切られ、用途に合わせてご利用いただけます。
会議室A・Bともにスクリーンやプロジェクターを完備し、ご人数や目的・ご要望に合わせて最適なご提案をいたします。
Party Space パーティー会場
自然光をふんだんに取り入れた和モダンなバンケット、シェフが目の前で腕を振るうオープンキッチンを兼ね備えたバンケット、会食や接待におすすめの個室など、大小合わせて最大12室の貸切会場と個室を完備。
セミナーや会議ののちのパーティーシーンまで、少人数から最大400名の大型イベントまで様々なニーズに対応いたします。
-
Megumi (着席最大150名)
9F -
Minori (着席最大40名)
9F -
Chef’s Kitchen (着席最大8名)
9F
-
Conference Room A
4F・5F -
Conference Room B
4F・5F
Plan プラン
お集まりの目的に合わせてさまざまなプランをご用意しております。
ご人数やご希望に合わせてアレンジも可能ですのでお気軽にお問い合わせください。
Scene ご利用シーン
-

Party/
Incentive 宴会・パーティー- 歓送迎会・忘新年会
- 懇親会・決起集会
- 祝勝会・報奨旅行
- インセンティブパーティー
- アフターパーティー
- その他、各種ご宴席
-

Exhibition/
Event エキシビジョン/イベント- 宝飾展示会・絵画展示
- アパレル販売会
- ファッションイベント
- ブランド新商品発表会
- その他、各種エキシビジョン
-

Meeting/
Conference 会議/研修- 会議・研修・講演会
- セミナー・キックオフ
- オフサイトミーティング
- その他、各種ミーティング
-

Restaurant 会食/接待
- 接待・会食・顔合わせ
- 結納テーブルマナー
- 退職のお祝い
- 長寿や法事での親族の集まり
- その他、各種交流会や集まり

新鮮な地元食材をシェフ自身が探し求め、創造豊かに美味しく仕上げる「KYUSYU CUISINE」。
糸島野菜・玄界灘産魚介類など九州の恵みに育まれた旬の食材をふんだんに使いつくりあげます。
安心して食事をお楽しみいただけるような、オリジナルメニューの作成にも対応しております。
対応可能な料理内容
和食会席洋食コース和洋折衷コースビュッフェ卓盛りお弁当ケータリングヴィーガンベジタリアン
その他ご要望に応じて柔軟に対応いたしますFlow ご利用の流れ
-
お問い合わせ
お電話またはメールにてお問い合わせください。
利用日の1年以上前よりお申込みをご希望の場合はご相談ください。
利用日の1年前より、お申込みを受付いたします。 -
お問い合わせのご回答
専属のコンシェルジュより、お電話またはメールにて、お問い合わせ内容に応じて1~3営業日中にご回答、ご返信をさせていただきます。
年末年始を除く -
お下見
会場のお下見をご希望の場合、事前にご予約をいただきましたらご案内可能でございます。お気軽にご相談ください。
下見無しでご予約いただくことも可能です。 -
日程仮予約
原則1週間の期間、ご希望の日程を仮予約いただけます。
キャンセル時期とキャンセル料について
- 開催当日の91日前まで
- なし
- 開催当日の90日前から60日前まで
- お見積り総額の30%と実費諸費用
- 開催当日の59日前から30日前まで
- お見積り総額の50%と実費諸費用
- 開催当日の29日前から10日前まで
- お見積り総額の80%と実費諸費用
- 開催当日の9日前から当日ま
- お見積り総額の100%
-
本予約
本予約のご意思をいただきましたら、コンシェルジュよりお申込書と御約款をお送りいたします。
下見なしで本予約していただくことも可能です。
ご記載後、本予約の成立となります。 -
事前打ち合わせ
実際に会場にお越しいただき、開催当日に向けたお打合せやお下見もしていただけます。気になる点などお気軽にご相談ください。
-
開催当日

-
駐車場はありますか?
原則は近隣の駐車場をご利用いただいています。搬入車両の荷下ろし、荷積み時に警固神社敷地内への車両の入庫は可能でございます。その他、車椅子をご利用の方など、担当者にご相談ください。
-
予約時間より前に会場へ入れますか?
ご予約時間は設営~片付けまでの時間にて承っておりますので、予約時間前の入室はご遠慮いただいております。
-
ケータリング等持ち込みは可能ですか?
ご飲食物のお持ち込みはお断りさせていただいておりますが、弊社にて手配可能でございます。サンプルメニューなどご紹介させていただきますので担当者にご相談ください。
-
お弁当やお茶の注文はできますか?
可能です。
数量が多い場合はご利用日3週間前を目処におおよその数量をご連絡ください。
また、ご注文の数量変更はご利用日の3日前まで承っております。 -
部屋の延長はできますか?
当日の会場利用状況によっては可能です。
延長してのご利用の場合、別途延長料請求書発行いたします。 -
何時から何時まで利用可能ですか?
9:00~19:00までが基本の利用時間となっております。
※7:00~9:00は早朝料金(2割増し)となります
※19:00~22:00は夜間料金(2割増し)となります -
合唱を伴う利用は可能でしょうか?
窓は防音ガラス使用していますが、入口から廊下に関しては声が漏れます。
同じ階にご利用者様が入っている場合もございますので、担当までご相談くださいませ。 -
楽器の使用は可能でしょうか?
弾き語り程度でしたら可能です。振動の大きなものはご遠慮いただいております。
窓は防音ガラス使用していますが、入口から廊下に関しては声が漏れます。同じ階にご利用者様が入っている場合もございますので、担当までご相談くださいませ。 -
喫煙所はありますか?
電子たばこのみテラスで喫煙が可能です。
紙たばこでの喫煙は警固公園喫煙所のご利用をお願いいたします。 -
テラスへ出られますか?
一部のみ可能です。

Access アクセス
〒810-0001
福岡市中央区天神2丁目2-20 警固神社社務所ビル 9F
- お車でお越しになる場合
- 福岡高速環状線 天神北ICから11分
お車でお越しの場合は近隣の駐車場をご利用ください。 - バスでお越しになる場合
- 西鉄バス天神警固神社三越前より徒歩1分
- 地下鉄でお越しになる場合
- 福岡市営地下鉄天神駅より徒歩3分
- 電車でお越しになる場合
- 西鉄大牟田線福岡天神駅より徒歩1分




















